-
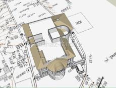
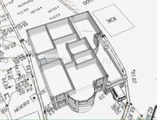
ТУРБАЗА ,Место отличное , все док на руках.
Дополнительная информация: Турбаза ,продаю земельный участок 8 соток недалеко от эстокады, под строительство дома. Участок подбирался под себя,планы поменялись,очень много средств вложенно, распланирован ,проведены все комуникации, с шикарным видом на город Сухум,море и горы,полностью огорожен блочным забором,дорогие ворота с дверью ,свет,вода,участок распланирован, все документы на руках, также есть домовая книга,готовый проэкт дома, при желании можем построить по проэкту за доп плату. Участок подбирал для себя , планы изменились, срочно нужны деньги,расмотрю расрочку. Без торга. ПРОДАЖА БЕЗ РИЭЛТОРОВ, АГЕНСТВ И ПОСРЕДНИКОВ !!! Собственник. Если прямой звонок не проходит,пишите звоните по Вацапу ,Максу.
Цена: 6 850 000 руб.
Адрес: Турбаза,недалеко от эстокады.
+79407299333
Дата подачи объявления: 14.04.2026 08.06
Пожаловаться
-
Поделиться с друзьями

Продаётся капитальный магазин
Строим домики
Цемент 550₽
Эвакуатор
Ветеринарная клиника
Сдается помещение в Новом Афоне
Арматура 53000/т
Пансионат Мюссера объявляет набор сотрудников
Камины ручной работы
Покупка золотых зубов, коронок и золотых протезов (стоматологическое золото)
Квартира у моря
Продаётся участок
ПРЕМЬЕРА АВАТАР 3
❗Цена снижена❗ Продам: Гостиница, Пицунда, Алахадзы
Куплю волосы
Требуется логист на винзавод в Абхазии
Пароконвектомат RADAX
АФОН 13 соток❗️❗️❗️❗️
Требуется персонал
Продается участок
Стабилизатор напряжения 220 в 20 киловат

























Менеджер по сдачи автомобилей в аренду.
Консультант/менчердайзер
Требуются кассиры
Сдается в аренду летнее кафе в старой Гагре, при отеле.
Лучшие в Абхазии цены
Строительная компания @vertikal__stroy
Разные фирмы
Тоебуется оператор 1С
Продается участок
Продается особняк❗️
Продаётся дом в городе Гудаута
Скупка золота и ювелирных изделий
Продам участок 13,5 соток в Цандрипш
Стабилизатор напряжения трех-фазный
Продается объект в Алахадзы по ул. Шаумяна.
Сдаётся отель на Каштаке
Покупаем золото в любом состоянии
Шеф-повар; - повар; - официант.
Сдается в аренду торговый павильон
Требуется водитель экспедитор на винный завод
Блоки 60₽ полублоки 50₽ цемент 550₽
ПРОДАЖА!!!