-
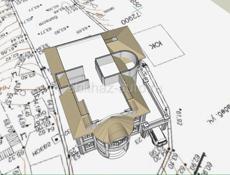
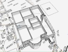
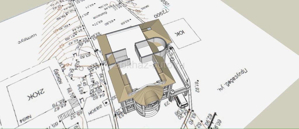
ГОТОВЫЙ ОБЬЕКТ ., ТУРБАЗА !
Дополнительная информация: Срочно продам на Турбазе земельный участок 8 соток под строительство дома. Участок подбирался под себя,планы поменялись,очень много средств вложенно ,с панорамным видом на город Сухум,море и горы,полностью огорожен блочным забором,недешовые ворота,свет,вода,участок распланирован,все документы на руках,готовый проэкт дома, при желании можем построить по проэкту за доп плату,около километра море. ПРОДАЖА БЕЗ РИЭЛТОРОВ, АГЕНСТВ И ПОСРЕДНИКОВ!
Цена: 9 000 000 руб.
Адрес: Турбаза
+79407299333
Дата подачи объявления: 22.10.2025 08.54
Пожаловаться
-
Поделиться с друзьями

Требуется электрик
Майнеры с доставкой в Абхазию 🇹🇬
Куплю алюминиевый шифер 10 шт
Продаётся коляска, в хорошем состоянии. Mima Xari Sport 2в1.
Персонал в гостевой дом
🚗 Трансферная компания ищет водителей
Сдается в аренду
Чистка бассейна
Требуется бухгалтер
Водитель экспедитор
Сдается 2-х комнатная квартира в районе Турбазы
помошник повара
Требуется повар
Продается 4-х комнатная квартира в Стамбуле
Аренда помещения
РЕМОНТ ХОЛОДИЛЬНИКОВ
Требуется слесарь
Строительная компания СтройПроект
Ищу помещение в Сухуме
Асики с доставкой в Абхазию 🇹🇬
Менеджер в прокат автомобилей.
Экскурсионное агентство набирает кассиров-реализаторов экскурсионных билетов
Продается готовый бизнес в центре Сухума
Требуется торговый представитель
Требуется повар
Требуется повар
Требуется логист
Сдается 3 комнатная квартира
Продаётся торговый ларёк 4/2!
Стабилизатор напряжения 220 в 20 киловат
Строительная компания @vertikal__stroy



























Участок в п. Агудзера, рядом с новым овощехранилищем.
🍽️🌟 Garuda Бутик-отель ищет Официанта шведской линии! 🌟🍽️
Продаю дом
Продаётся телевизор новый LG в коробке! Продается сейф!
ПИЛА ЛЕНТОЧНАЯ ДЛЯ МЯСО с МЯСОРУБКОЙ
Требуется кассир
Требуются администратор и хостес в салон красоты❗️
АКЦИЯ‼️БЕСПЛАТНЫЕ СТРИЖКИ И УКЛАДКИ‼️КОРРЕКЦИЯ БРОВЕЙ⚡️⚡️
Домики и номера на берегу моря в Пицунде
Участок в селе Баслата
Требуется сотрудник на мойку самообслуживания
Фасовочно упаковочный автомат Инпак-Эконом+ мдв-11
Экскаватор JCB
Требуется работник
Продам дом. Сухум (280м2)
Магазин Автошина г.Сухум ул.Адлейба 32
ПРОФЕССИОНАЛЬНАЯ УСТАНОВКА КОНДИЦИОНЕРОВ
Сдается помещение в г. Сухум
Требуется сантехник в г. Пицунда
Требуется водитель-экспедитор
📌 УЧАСТОК КЫНДЫГ
Требуется секретарь-делопроизводитель
Квартира в Синопе
Покупка золотых зубов, коронок и золотых протезов (стоматологическое золото)
Сиделка с проживанием в деревню Лыхны❗️
Сдаются ларьки на летний сезон.
продается 4х комнатная квартира
Скупка золота и ювелирных изделий
РЕМОНТ ЭЛЕКТРОННЫХ ПЛАТ
продается коптильное помещение
Участок Гудаута
Требуется фармацевт
Водители в трансфер со своим авто 