-
Отдам за 6 800 000, недалеко от эстокады.
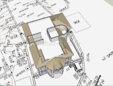
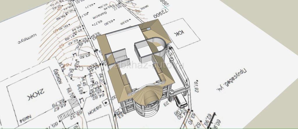
Дополнительная информация: Турбаза ,продаю земельный участок 8 соток недалеко от эстокады, под строительство дома. Участок подбирался под себя,планы поменялись,очень много средств вложенно, распланирован ,проведены все комуникации, с шикарным видом на город Сухум,море и горы,полностью огорожен блочным забором,дорогие ворота с дверью ,свет,вода,участок распланирован, все документы на руках, также есть домовая книга,готовый проэкт дома, при желании можем построить по проэкту за доп плату. Участок подбирал для себя , планы изменились, срочно нужны деньги,расмотрю расрочку. Без торга. ПРОДАЖА БЕЗ РИЭЛТОРОВ, АГЕНСТВ И ПОСРЕДНИКОВ !!! Собственник. Такая цена до 15 апреля.
Цена: 6 800 000 руб.
Адрес: Турбаза
+79407299333
Дата подачи объявления: 25.03.2026 20.55
Пожаловаться
-
Поделиться с друзьями

Требуется продавец
Продаётся квартира
Установка кондиционеров. Электрика
Требуются моторист и ходовик.
В КОМПАНИЮ «ПРЕМИУМ» ТРЕБУЕТСЯ ОПЕРАТОР CALL-ЦЕНТРА.
Окна и Двери под заказ 9933072
Продаются надежные и стильные металлические стулья
Требуется начальник склада
Продается частный дом в г. Сухум в районе вокзала❗️
В продаже обородование для ресторана
Скупка золота и ювелирных изделий
Участок 22 сотки в Пицунде
Веломастерская / Велопрокат
Морозильник
Тоебуется оператор 1С
Продается участок в с. Кындыг 400м до моря
Продается особняк❗️
Предлагаю услуги логопеда
Продается 1 комнатная квартира
Продаются индюшки
Требуется водитель экспедитор на винный завод





























продается готовый бизнесшей
lami event агентство по оформлению мероприятий
Строительная компания @vertikal__stroy
Цена снижена! Продается 2 х комнатная квартира в центре г.Гагра
Требуется бухгалтер на винный завод
Продам участок 13,5 соток в Цандрипш
Золотой браслет
Сдаю домик
Покупка золотых зубов, коронок и золотых протезов (стоматологическое золото)
Требуется начальник отдела на винный завод
Требуется грузчик на винный завод
Грузоперевозки 9933072
Стабилизатор напряжения 220 в 20 киловат
Мишка Сана принимает заказы на любые праздники
Салон Красоты VAV
Участок 26 соток( с ветхим строением ) .
Срочно продается участок 9,5 сот
Сегодня ! 24 марта выезжает автобус с Краснодара
🏨 Вакансия горничной в Гаруда Бутик Отель . г. Сухум
Продается трейлер мобильное кафе
Требуются бармен , повар и официант
15 соток ‼️хороший торг в ближ дни 🔥
Продаётся квартира в г. Ткварчал!