-
Отдам за 7300000, все док на руках.
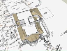
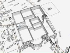
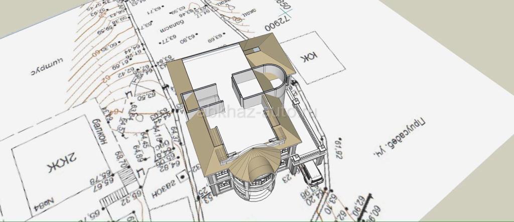
Дополнительная информация: Турбаза ,продаю земельный участок 8 соток недалеко от эстокады, под строительство дома. Участок подбирался под себя,планы поменялись,очень много средств вложенно, распланирован ,проведены все комуникации, с шикарным видом на город Сухум,море и горы,полностью огорожен блочным забором,дорогие ворота с дверью ,свет,вода,участок распланирован, все документы на руках, также есть домовая книга,готовый проэкт дома, при желании можем построить по проэкту за доп плату. Участок подбирал для себя , планы изменились, срочно нужны деньги,расмотрю расрочку. Без торга. ПРОДАЖА БЕЗ РИЭЛТОРОВ, АГЕНСТВ И ПОСРЕДНИКОВ !!! Собственник. Если звонки не проходят,пишите ,звоните по Максу,Вацапу ,
Цена: 7 300 000 руб.
Адрес: Турбаза,недалеко от эстокады.
+79407299333
Дата подачи объявления: 07.03.2026 15.35
Пожаловаться
-
Поделиться с друзьями

Стабилизатор напряжения 220 в 20 киловат
Строим и проектируем дома
Менеджер по выдачи авто
Кофейня ищет бариста
Сдается отель на Каштаке
Покупка золотых зубов, коронок и золотых протезов (стоматологическое золото)
Алюминиевые и пластиковые окна
🚗 Трансферная компания ищет водителей Автобусов
Участок продается в Сальме
Куплю волосы
Эвакуатор
Продается квартира в Гагре
Строительная компания @vertikal__stroy
Продается особняк❗️
🏨 Требуются прачки в Прачечную компании Гаруда в с. Дзыгута.
Требуются бармен , повар и официант
Холодильники
Земельный участок в Алахадзы
Набор сотрудников в пансионат Мюссера
Арт-проект с витражным куполом
Блоки 60₽ полублоки 50₽ цемент 550₽
Ткани КАПРИЗ 





























Требуются реализаторы экскурсионных билетов
ПИЛА ЛЕНТОЧНАЯ ДЛЯ МЯСО с МЯСОРУБКОЙ
Требуется сиделка для пожилого человека
Аренда
Продам участок 13,5 соток в Цандрипш
Ищете работников? Мы поможем! 👷♂️👩🍳🌿
Требуется водитель-экспедитор
Долгосрочная аренда 2-х комн. кв
Требуется продавец
Ищем мастера электроэпиляции
Продам USDT
Продается 2-комнатная квартира на 1 этаже
Экскаватор JCB
Продается дом
Продается Земельный участок.
Грузоперевозки по всей Абхазии с выездом в РФ
Администратор в гостиницу
Арматура 53000/т
Скупка золота и ювелирных изделий
Строительная компания СтройПроект
Кухня
Объявление о наборе мастеров в Beauty Bar
Сдам квартиру в Синопе