-
Гагра. Минигостиница 1000 кв.м, земельный участок 12 соток
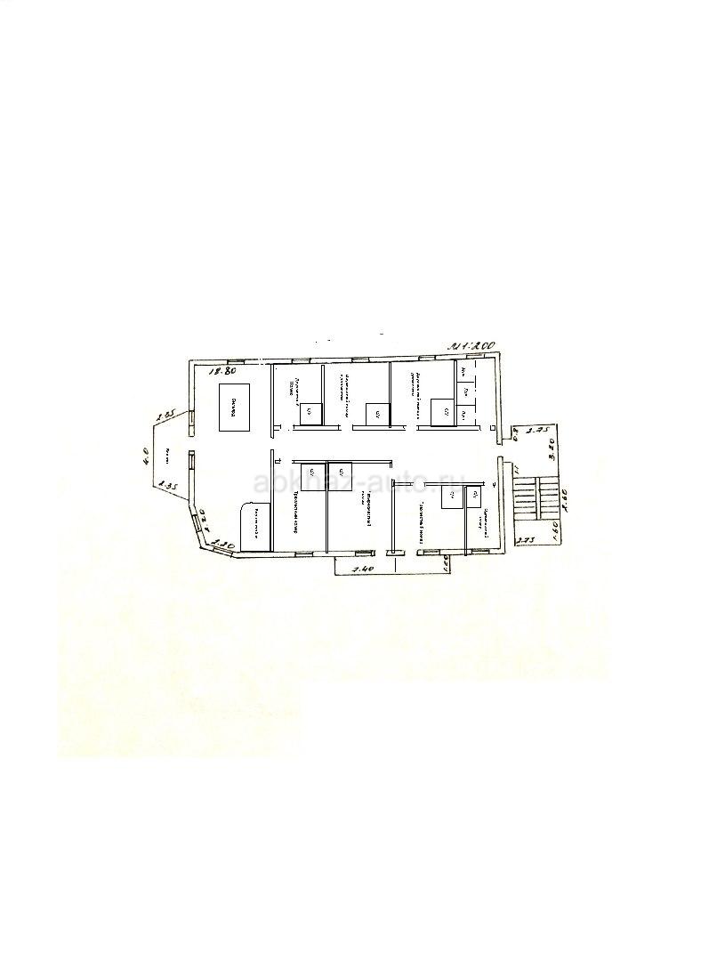
Дополнительная информация: Отличное вложение в готовый бизнес! Мини-гостиница оборудована всем необходимым: мебель, бытовая техника, постельные принадлежности – покупай и работай! Номерной фонд - 27 номеров, подсобные помещения в цокольном этаже (гараж, кладовая, 2 кухни, 3 обеденных зала). Хозяйственные постройки во дворе (беседка, насосная, трансформаторная). Собственный трансформатор на 60 кВа, дизельный генератор на 12 кВа. До моря – 800 метров (10 минут пешком) Можно сочетать часть дома 2/3 как бизнес, часть 1/3 - как жилой дом для семейного проживания: Из 27 комнат - 8 с отдельным входом с улицы, отдельная кухня и столовая, сауна. Оформление на граждан РА (жилой дом) или граждан РФ ( жилой дом переводится в коммерческую недвижимость или оформляется на ООО). Стоимость 90 000 000 руб. Прямым покупателям – хорошая скидка. Посредникам – хорошее вознаграждение. Вотсап, Телеграмм +7(977)800-58-62
Цена: 90 000 000 руб.
Имя: Игорь
Адрес: Гагра, 1 тупик ул. Адыгаа, д. 1
E-mail: amalia-gagra@yandex.ru
+79778005862
Дата подачи объявления: 08.01.2026 13.51
Пожаловаться
-
Поделиться с друзьями

Скупка золота и ювелирных изделий
Сиделка с проживанием в деревню Лыхны❗️
Требуются администратор и хостес в салон красоты❗️
Стабилизатор напряжения 220 в 20 киловат
Требуются работники в кафе
Требуется водитель-экспедитор
Продаётся торговый ларёк 4/2!
Участок Гудаута
Сдам в аренду гостиницу
Требуется логист
Строительная компания @vertikal__stroy
Продаю дом
Домики и номера на берегу моря в Пицунде
Требуется повар
Сдается в аренду
Продается квартира
Подписки на ИИ 🔥
🔥Срочная продажа 🔥
Требуется продавец
Продается 2 комнатная квартира
Требуется повар на чебуреки
Лучшие в Абхазии цены
Куплю алюминиевый шифер 10 шт
Участок в селе Баслата
Требуется электрик
Продаётся телевизор новый LG в коробке! Продается сейф!
Требуется бухгалтер
РЕМОНТ ЭЛЕКТРОННЫХ ПЛАТ
🍽️🌟 Garuda Бутик-отель ищет Официанта шведской линии! 🌟🍽️
Водитель экспедитор
Сдается помещение в г. Сухум



























Требуется торговый представитель
Сдается 3 комнатная квартира
📌 УЧАСТОК КЫНДЫГ
Продается двухэтажный дом
Garuda -Глэмпинг с. Дзыгута требуется бармен
Покупка золотых зубов, коронок и золотых протезов (стоматологическое золото)
Аренда помещения
Асики с доставкой в Абхазию 🇹🇬
Требуется кассир
МАЙНИНГ ЧАТ 🌴 АБХАЗИЯ
продается 4х комнатная квартира
Экскурсионное агентство набирает кассиров-реализаторов экскурсионных билетов
Требуется Автослесарь
Ищу помещение в Сухуме
Водители в трансфер со своим авто
Менеджер в прокат автомобилей.
Требуется горничная
Сдается 2-х комнатная квартира в районе Турбазы
Продам дом. Сухум (280м2)
Фасовочно упаковочный автомат Инпак-Эконом+ мдв-11
Требуется фармацевт
продается коптильное помещение
РЕМОНТ ХОЛОДИЛЬНИКОВ
Сдаются ларьки на летний сезон.
ПРОФЕССИОНАЛЬНАЯ УСТАНОВКА КОНДИЦИОНЕРОВ
Магазин Автошина г.Сухум ул.Адлейба 32
Требуется слесарь
Продается готовый бизнес в центре Сухума
Открытие мясного магазина
Квартира в Синопе
Ресторан сдается в аренду в Гаграх
Майнеры с доставкой в Абхазию 🇹🇬